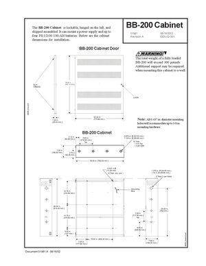
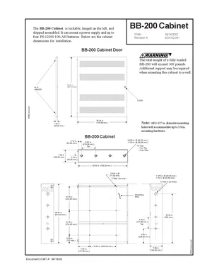
Installation Manual for the Notifier BB-100 and BB-200, published in 2002. Document No: 51981, Rev: A. Models BB-100, BB-200 and PS-12100. Physical installation guide, backbox dimensions, and cabling specifications.