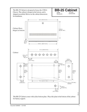
Installation Manual for the Notifier BB-25, published in 2000. Document No: 50898, Rev: B. Models BB-25 and CHS-6. Physical installation guide, backbox dimensions, and cabling specifications.