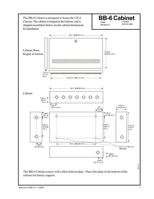
Datasheet for the Notifier BB-6, published in 2001. Document No: 51881, Rev: A. Models BB-6 and CH-6. Detailed technical specifications, electrical ratings, and agency listings.