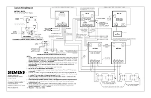
Wiring Diagram for the Siemens BI-35 for System 3. Document No: 315-085060. Model BI-35. System schematics, pinout configurations, and connection details.