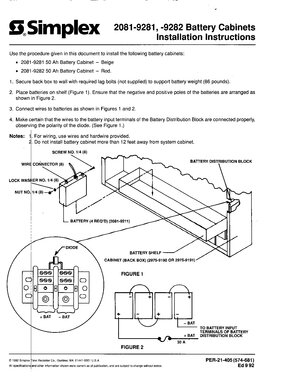
Installation Manual for the Simplex 2081-9281 and 2081-9282, published in 1992. Document No: PER-21-405, Rev: Ed 9 92. 5 models including 2081-9281, 2081-9282, 2081-9211 and 2 additional variants. Mounting instructions, wiring diagrams, and system power-up procedures.